Ce charmant petit appartement de 3,5 pièces se situe au rez-de-chaussée d’un bel immeuble construit en 1979 à la route de Bottire 27a, dans un quartier historique et prisé de la ville de Sierre.
La situation est idéale, à proximité immédiate du centre-ville et de l’ensemble de ses commodités (commerces, centres médicaux, écoles, jardin d’enfants…), tout en bénéficiant d’un cadre calme et verdoyant.
Le séjour lumineux, ouvert sur la cuisine, donne accès à une grande terrasse privative, véritable atout du bien, offrant un bel espace extérieur ainsi qu’un agréable dégagement. L’appartement est bien entretenu et ne nécessite pas de travaux de rénovation, à l’exception du remplacement éventuel des fenêtres.
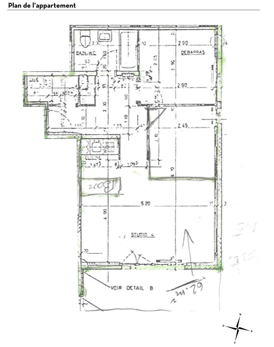
Malgré sa surface compacte, l’appartement est bien agencé et offre deux petites chambres : les pièces sont proportionnées, fonctionnelles et agréables à vivre, ce qui en fait une opportunité idéale tant pour un usage personnel que pour un investissement.
L’appartement dispose d’une surface habitable brute de 57.3 m2, à laquelle s’ajoute la terrasse de 8.3 m2 (total de la surface de vente pondérée avec la 1/2 terrasse = 61.5 m2). Il s’organise de la manière suivante en considérant les surfaces habitables nettes (=balayables) :
Une buanderie commune est à disposition des résidents à l’étage. A noter que ce bien ne comprend ni cave, ni place de parc.
L’appartement peut être occupé en résidence secondaire mais la vente aux étrangers n’est pas autorisée.
Points forts :