Sion/Salins, charmant appartement de 3.5 pièces de 98m2 avec terrasse et pelouse privative de 64m2 VENDU

route de la Courtaz 65, 1991 Salins

CHF 590'000.-
1
2
3
4
5
6
7
8
9
10
11
12
13
14
15
16
17
    17 photos     OpenStreetMap     Fichier ou plan   
  • Prix de vente : CHF 590'000.-
  • Surface habitable : ~ 98 m²
  • Disponible : Vendu

Description

Ce superbe appartement de 98 m2 se situe au 3ème étage inférieur d’une petite PPE de 5 appartements, à la route de la Courtaz 65, dans le charmant village de Salins-Arvillard.

Construit en 2015, cet immeuble en terrasse séduit par sa conception architecturale originale qui lui donne un certain cachet. Sis dans un quartier calme et verdoyant, la résidence bénéficie d’un environnement paisible, tout en profitant des commodités (écoles primaires, crèche, UAPE, etc.) et de l’ambiance familiale du village de Salins.

Orienté nord/est/ouest, l’appartement profite d’une très belle luminosité et d’un magnifique dégagement sur la plaine du Rhône, sans vis-à-vis, grâce à ses nombreuses baies vitrées. Sa conception allie modernité et fonctionnalité avec une cuisine ouverte sur le séjour, deux chambres confortables et deux salles d’eau, l’une avec baignoire et l’autre avec douche. Une pelouse privative ainsi qu’une terrasse, véritable pièce supplémentaire en bonne saisons, offre une vue magnifique sur la plaine.

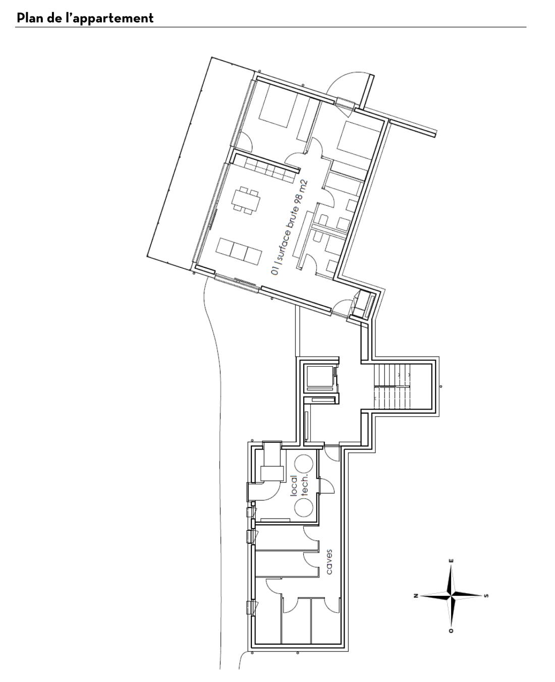
L’appartement dispose d’une surface habitable brute de 98 m2, à laquelle s’ajoutent une terrasse de 28.7 m2 et d’un jardin de 36.5 m2 (total de la surface de vente pondérée avec 1/2 terrasse et 1/3 jardin = 124.5 m2). Il s’organise de la manière suivante en considérant les surfaces habitables nettes (=balayables) :

  • Un hall d’entrée de 7.1 m2 avec armoires intégrées,
  • Une cuisine ouverte sur le séjour de 35.9 m2,
  • Deux chambres, l’une orientée nord de 14.6 m2 et l’autre orientée est de 11.6 m2,
  • Une salle d’eau avec baignoire et espace pour colonne de lavage de 5.9 m2,
  • Une salle d’eau avec douche de 4.4 m2,
  • Une terrasse de 28.7 m2 et une pelouse privative 36.5 m2

Le bien comporte également une cave complètement fermée et une place de parc extérieure comprise dans le prix de vente.

Le bien peut être acquis comme résidence secondaire.

Points forts :

  • A proximité de la ville
  • Petit immeuble récent de 5 appartements
  • Beaux volumes et magnifique dégagement
  • Terrasse et jardin privatif

Tout afficher

Détails


  • Pièce(s) : 3.5
  • Chambre(s): 2
  • Salle(s) d'eau: 2
  • Niveau: 3. Etage
  • Catégorie : Appartement
  • Réf. : 2163

 Exposition


 A proximité


 Environnement


 Extérieur


 Ensoleillement et vue


Situation géographique

Voir en Street View    Voir sur Google Maps